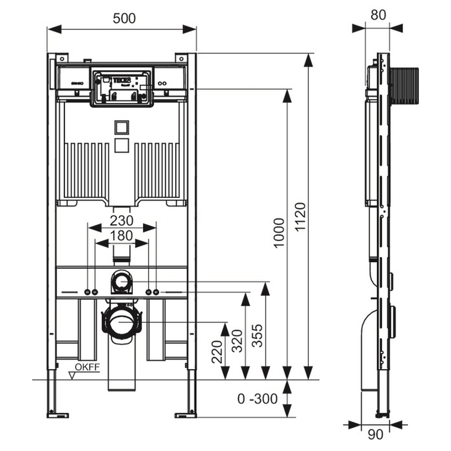
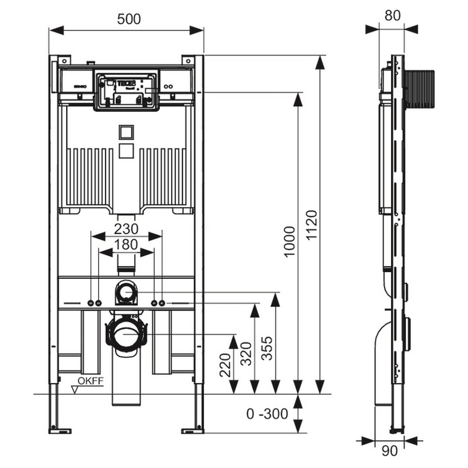
Inbouwreservoir TECE profil met Octa II-spoelkast 8 cm bouwhoogte 1120 mm
Dit inbouwreservoir is voor bevestiging aan TECEprofil profielbuizen of voor inbouw in metaal- of houtprofielwanden en als voorwand of hoekopstelling; ook geschikt voor losse opstelling.
Compleet voorgemonteerde eenheid bestaat uit:
- veiligheidsreservoir van slagvast kunststof
- spoelkast volledig voorgemonteerd en verzegeld
- reservoiraansluiting met buitendraad R 1/2Inch boven, compatibel met snelkoppelingen
- 7 liter reservoirvolume; 6 liter vooraf ingestelde standaard spoelhoeveelheid; 4,5 liter spoelhoeveelheid op elk moment naar keuze instelbaar; 3 liter gedeeltelijke spoelhoeveelheid bij duospoeltechniek; spoelhoeveelheid van 4/2 liter optioneel mogelijk.
- geïsoleerd tegen condenswater
- voor TECE bedieningsplaten en WC-bedieningsarmatuur.
- toe te passen met enkel- of duospoeltechniek
- Incheasy fitInch bedieningsplaatmontage
- installatietunnel voor service-opening, kan zonder gereedschap worden ingekort
- geluidsarm hydraulisch vulventiel
Inbouwframe:
- zelfdragend, gepoedercoat
- 2 bevestigingsbouten en moeren M 12
- WC-afvoerbocht DN 90, inclusief PP overgangsstuk DN 90/100, inclusief ruwbouwstop
- overgangsstuk ook geschikt voor horizontale inbouw
- WC-aansluitset DN 90
- geschikt voor wandopbouw tot 30 cm
- keramiek-bevestigingsafstand 180 of 230 mm
- 2 wandbevestigingen
- TECE geluidsdempingsset